Monona Terrace Community & Convention Center-Wisconsin,Madison Top Trade Shows | Trade Show List | Trade Show and Conference Calendar | Top Technology Trade Shows List | Top Technology Conference List | Top Healthcare Trade Shows List | Top Healthcare Conference List | Top Medical Devices Trade Shows List | Top Medical Devices Conference List | Top Consumer Electronics Trade Shows List | Top Consumer Electronics Conference List | Top Supply Chain Trade Shows List | Top Supply Chain Conference List | Top Military and Defense Trade Shows List | Top Military and Defense Conference List | Top Agriculture Trade Shows and Fairs List | Top Agriculture Conference List | Top Energy Trade Shows List | Top Energy Conference List | Top Health & Fitness Trade Shows List | Top Health & Fitness Conference List | Top Food & Hospitality Trade Shows List | Top Food & Hospitality Conference List | Top Government Trade Shows List | Top Government Conference List | Top Home Shows List | Top Home & Interior Design Conference List | Top Boat Shows List | Top Flower Shows List | Top Orchid Shows List | Top Women Shows List | Top Fashion & Beauty Trade Shows List | Top Apparel Trade Shows List | Top Retailer Trade Shows List | Top Medical & Pharma Trade Shows List | Top Medical & Pharma Conference List | Top Auto Shows List | Top Franchise Trade Shows List | Top Book Shows Expos List | Top Publisher Industry Conference List | Professional Speakers | Top Speaker’s Bureau List | Trade Show Supplier Directory | Trade Show Exhibitor Tools | Largest Trade Show Exhibitor List by Industries | Largest Conference Sponsor List by Industry | Top Medical & Pharma Exhibitor List | Top Virtual Events List | Top Virtual Conference List | Top Online Trade Shows List | Top Supply Chain Virtual Events List | Best Practices for Trade Shows | Best Practices for Trade Show Exhibitors | How to Build Virtual Booths | Top Travel & Tourism Trade Shows List | Top Travel & Tourism Conference List | Top Manufacturing Trade Shows List | Top Manufacturing Conference List | Top Audio Visual Services Providers List | Top Venues for Trade Shows | Top Conference Centers List | Top Convention Centers List | Las Veas Trade Shows List | Top Trade Shows Las Vegas List | Top Trade Shows Orlando List | Top Trade Shows Houston List | Top Trade Shows Boston List | Top Trade Shows San Diego List | Top Trade Shows Honolulu List | Top Trade Shows Miami List | Miami Beach Convention Center Event Calendar | Las Vegas Convention Center Event Calendar | Orlando Convention Center Event Calendar | Event Planner Tools | Association Event Management Registration Tools | Association Event Management Software | Online Event Management System | Online Event Registration | Suppliers and exhibitors

Designed for trade association, exhibitors, academic institutions and speakers, List and promote your online events

Largest database of verified shows since 2015, Detailed profiles of verified trade shows, conferences and consumer shows. Create your event and attract attendees and exhibitiors, Listing tools for verification, institution and corporation.

Connect with verified event organizers, Listing and RFP tools for verified venue operators.Size events by verified attendee and exhibitor count database

Research verified b2b events by industry and profession, Review virtual exhibitor showcase. Create Profile. Connect with verified event organizers and exhibitors.

Search 900k verified exhibitor database organizedby 2,000+ events since 2018.

loader

Monona Terrace Community & Convention Center

  • Madison > Wisconsin

Key Metrics

Exhibition Area (sq ft)
250,000
Exhibition Hall
3
Largest Ballroom (sq ft)
37,200
Ballroom (seating)
3,300
Hotels (rooms)
NA
Largest Meeting Space (sq ft)
NA
Meeting (rooms)
NA
Meeting Space (sq ft)
37,000
Catering
-

Overview

Monona Terrace Community and Convention Center opened its doors after nearly 60 years of debate on July 18, 1997. It was first designed by Wisconsin native and internationally-renowned architect Frank Lloyd Wright in 1938 as a cultural, governmental and recreational building. Wright reworked the design several times between 1938 and 1958 before signing off on the final plans seven weeks before his death in 1959.

The 250,000 square-foot, multi-level convention center surrounded by curving, geometric forms that converge with the breathtaking beauty of the natural environment. Spectacular glass vistas that accent flexible meeting and exhibition spaces. Dedicated staff that ensure that every detail is covered – from concept to execution. And all of it in the epicenter of one of the Midwest's most vibrant and inspiring communities.

With over 37,000 square feet of exhibition space, Monona Terrace offers the ideal setting to create memorable connections and establish mutually beneficial relationships. You’ll find world-class amenities and services – all designed to turn an ordinary trade show or exhibit into an extraordinary event.
 

Source : Venue Website

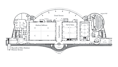
Floor Plan

Source : Venue Website

Photos

Video

Current Events +

Event Name City State Atendance Exhibitors Date
Racial Justice Summit 2025 Estimated
estimated
verified
verified
Sep 25, 2025
2025 HPS Annual Meeting - Health Physics Society Estimated
estimated
Estimated
estimated
Jul 13, 2025
SRCLD Conference 2025 - - May 29, 2025
Orchid Quest 2025 Estimated
estimated
verified
verified
Feb 01, 2025

Past Events +

Event Name City State Atendance Exhibitors Date
Racial Justice Summit 2024 Estimated
estimated
verified
verified
Oct 25, 2024
39th Annual Society of Transplant Social Workers STSW Conference 2024 Estimated
estimated
verified
verified
Oct 07, 2024
AAS 244th Meeting - American Astronomical Society Estimated
estimated
verified
verified
Jun 09, 2024
SRCLD Conference 2024 verified
verified
verified
verified
May 30, 2024
Wisconsin Early Stage Symposium 2023 - Wisconsin Technology Council - - Nov 08, 2023

Upcoming Events +

Event Name City State Atendance Exhibitors Date
2026 ASAS-CSAS Annual Meeting & Trade Show - American Society Of Animal Science / Canadian Society Of Animal Science - - Jul 19, 2026
Sign Up to send Request for Proposal
Contact

Event

Date

Requirements
Catering
AV System

Contact